Viessmann Hybridpaket Vitocal 150-A A06 230V I Vitocrossal 300 CU3A 35kW Z030323

Viessmann Hybridpaket Vitocal 150-A A06 230V I Vitocrossal 300 CU3A 35kW Z030323

Bild per Mausklick vergrößern
BESCHREIBUNG

Viessmann Hybridpaket Vitocal 150-A A06 230 Volt mit Vitocrossal 300 CU3A 35kW

Herstellerteilenummer: Z030323

Lieferumfang

  • 1 x Z026431 Vitocal 150-A AWO-M-E-AC 151.A06
  • 1 x ZK06008 Montagehilfe Aufputz-Montage (450mm)
  • 1 x ZK06013 Konsole für Bodenmontage
  • 1 x 7438702 Tauchtemperatursensor (NTC 10 kOhm)
  • 1 x ZK07142 Esbe VRG131 1", Isol., Motor ARA645
  • 1 x 7266384 Heizungsfilter compact
  • 1 x Z029758 Vitocrossal 300 CU3A 35 kW vitographite
  • 1 x 7143779 Kleinverteiler mit Armaturen
  • 1 x 7197451 Gas-Durchgangshahn 3/4 m.TAE
  • 1 x 7938083 Membran-Ausdehnungsgefäss H35 white
  • 1 x 9572213 Kappenventil R3/4
  • 1 x 7663174 KFE-Hahn Simplex 1/2" m.Schlauchtülle
  • 1 x 7026756 5 Jahre Garantieserv. bei Registrierung
  • 1 x Z027084 Vitocell 100-E SVPB 400l vitographite
  • 1 x Z029428 Vitocell 100-B CVBC 300l S2
  • 1 x 7172611 Umwälzpumpe Vi Yonos Para 25/6 9h/180
  • 1 x 7426463 Anlegetemperatursensor
  • 1 x 7452091 Erweiterung EA1
  • 1 x Z026607 Erweiterung EM-HB1
  • 1 x 7970102 VIESSMANN ViGuide Pro

Beschreibung:

  • Geringe Betriebskosten durch hohen COP (Coefficient of Performance)
  • Leistungsregelung und DC-Inverter für hohe Effizienz im Teillastbetrieb
  • Eine maximale Vorlauftemperatur bis 70 °C bei einer Außentemperatur von -10 °C ermöglicht den Einsatz sowohl im Neubau als auch in der Modernisierung.
  • Selbstoptimierende Regelung des Volumenstroms über Viessmann Hydro AutoControl
  • Umweltfreundliches, natürliches Kältemittel R290 mit einem besonders niedrigen GWP von 0,02 (GWP = Global Warming Potential)
  • Komfortabel durch reversible Ausführung für Heizen und Kühlen
  • Besonders leise im Betrieb durch Advanced acoustics design+ (AAD+)
  • Internetfähig durch integriertes WLAN oder LAN (Zubehör)
  • Bedienung, Optimierung, Wartung und Service über ViCare App und ViGuide
  • Geführte Inbetriebnahme über ViGuide
  • Einzelraumregelung mit Komponenten aus ViCare Smart Climate (Zubehör)
  • Witterungsgeführte Regelung mit optionaler Raumaufschaltung mit Vitotrol Fernbedienung (Zubehör)

Lieferumfang/Ausstattung

Modulierende Wärmepumpe bestehend aus Außen- und Inneneinheit für Heizung, Kühlung und Warmwasser.

Außeneinheit:

  • Mit DC-Inverter-Technologie zur stufenlosen Leistungsregelung, für einen optimalen Betrieb unter allen Betriebsbedingungen
  • Geräusch- und schwingungsarm durch drehzahlgeregelten Doppelrollkolben-Verdichter
  • Mit elektronischem Expansionsventil zur Erhöhung der Jahresarbeitszahl und drehzahlgesteuerten Axialventilatoren
  • Energieeffiziente Abtauung über Kreislaufumkehr. Korrosionsbeständiger, wasserabweisender Verdampfer mit Blue Fin-Beschichtung und geschwungenen Verdampferlamellen zur Erhöhung der Effizienz sowie effizientem asymmetrischen Edelstahl-Plattenwärmetauscher (1.4401/1.4301) zur Wärmeabgabe an das Heizsystem
  • Mit integriertem Wasserfilter zum Schutz des Verflüssigers vor Verunreinigungen

Tragehilfen für die Außeneinheit im Lieferumfang.

Hinweis!

Das Kältemittel R290 ist ein leicht entflammbares Kältemittel (Sicherheitsgruppe A3 gemäß ANSI/ASHRAE Standard 34). Arbeiten am in der Außeneinheit verbauten Kältekreis dürfen aus Sicherheitsgründen nur durch qualifiziertes Fachpersonal erfolgen.

Inneneinheit:

  • Mit Hydro AutoControl Hydraulik zur Bereitstellung der erforderlichen Abtauenergie und Sicherstellung der erforderlichen Mindest-Umlaufmenge im Wärmepumpen Kreis
  • Mit eingebauter Hocheffizienz-Umwälzpumpe für den Heizkreis, Abtaupuffer 16 l, Bypassfunktion, Heizwasser Durchlauferhitzer, Ausdehnungsgefäß 18 l, 4/3-Wege-Ventil, Sicherheitsventil, Volumenstromerfassung, Außentemperatursensor (leitungsgebunden) und steckbarer Anschlussverrohrung aus Kupfer (Glattrohr) und Montageschiene zur Befestigung der Inneneinheit an der Wand

Montage der Außeneinheit auf Boden- oder Wandkonsole (Zubehör), Inneneinheit wandhängend. Verbindung zwischen Außen- und Inneneinheit mit geeigneten wassergefüllten Verbindungsleitungen (bauseits) und Anschluss-Sets (Zubehör) herstellen.

Für Heizungsanlagen mit bis zu 4 Heiz-Kühlkreisen

Mit witterungsgeführter, digitaler Wärmepumpen- und Heiz-/Kühlkreis Regelung

  • Bedienung über 7-Zoll-Farb-Touchdisplay mit Klartext- und Grafikanzeige, Inbetriebnahme-Assistenten, kontextbezogener Hilfe, Anzeigen für Energieverbräuche sowie alternativ Bedienung über mobiles Endgerät
  • Zeiträume für den Heizkreis oder Heiz-/Kühlkreis, Trinkwassererwärmung und Zirkulation des Trinkwassers getrennt einstellbar
  • Zyklischer Taktbetrieb für Trinkwasserzirkulation einstellbar
  • Mit Speichertemperaturregelung
  • Erhöhte Trinkwasserhygiene durch Aufheizen auf einen erhöhten Trinkwassertemperatur-Sollwert möglich.
  • Mit automatischer Sommer-/Winterzeitumstellung und kontrollierter Estrichtrocknung
  • Einstellungen für Betriebsarten, Party-Mode, Ferienprogramm, Ferien-zu-Hause-Programm, bedarfsabhängige Heizkreispumpen sowie Sommersparbetrieb und variable Heizgrenze
  • Mit Ansteuerung eines zusätzlichen Wärmeerzeugers, z. B. Öl-/Gas-Heizkessel (Zubehör)
  • Hybrid Pro Control in Verbindung mit einem zusätzlichen Wärmeerzeuger (Zubehör)
  • Möglichkeit zur Einstellung der Raumtemperatur (3 Raumtemperatur-Niveaus) und der Trinkwassertemperatur und zur Abfrage von Temperaturen
  • Mit Smart Grid Regelfunktion EVU-Sperre, geräuschreduzierter Betrieb und Notbetrieb.
  • Integrierter Wasserdrucksensor zur Messung des Anlagendrucks
  • Kommunikationsfähig über CAN-BUS, PlusBus, WLAN, LAN (Zubehör)
  • Mit im Gerät integriertem Kommunikationsmodul. Fernbedienung und Monitoring des Geräts über Smartphone mit der ViCare App in Verbindung mit integrierter Internetschnittstelle und bauseitigem Internetzugang über WLAN oder LAN (Zubehör) möglich
  • Gerät enthält Anlagenschalter, Maximaltemperaturbegrenzer, Temperaturwächter und Temperaturbegrenzer, Betriebs- und Störungsanzeige.
  • Technische Daten Wärmepumpe:

    • Bei Betriebspunkt A2/W35:
      • Nenn-Wärmeleistung: 3,1 kW
      • Elektr. Leistungsaufnahme: 0,82 kW
      • Leistungszahl (COP): 3,8
    • Bei Betriebspunkt A7/W35:
      • Nenn-Wärmeleistung: 4,8 kW
      • Elektr. Leistungsaufnahme: 0,98 kW
      • Leistungszahl (COP): 4,9
    • Bei Betriebspunkt A -7/W35:
      • Nenn-Wärmeleistung: 5,6 kW
      • Elektr. Leistungsaufnahme: 2,0 kW
      • Leistungszahl (COP): 2,8
    • Bei Betriebspunkt A35/W18:
      • Kühlleistung: 5 kW
      • Elektr. Leistungsaufnahme: 1,14 kW
      • Leistungszahl (EER): 4,4
    • Lufteintrittstemperatur Heizbetrieb:
      • Lufttemperatur min.: -20 °C
      • Lufttemperatur max.: 40 °C
    • Lufteintrittstemperatur Kühlbetrieb:
      • Lufttemperatur min.: 10 °C
      • Lufttemperatur max.: 45 °C
    • Heizwasser (Sekundärkreis):
      • Max. externer Druckverlust (RFH) bei Mindestvolumenstrom 1000 l/h: 600 mbar
      • Max. externer Druckverlust (RFH) bei Mindestvolumenstrom 1000 l/h: 60 MPa
      • Max. Vorlauftemperatur: 70 °C
      • Zul. Betriebsdruck: 3 bar
      • Zul. Betriebsdruck: 0,3 MPa
    • Elektrische Werte Außeneinheit:
      • Nennspannung: Verdichter: 1/N/PE 230 V/50 Hz
      • Anlaufstrom Verdichter: <10 A
    • Elektrische Werte Inneneinheit:
      • Nennspannung Regelung: 1/N/PE 230 V/50 Hz
      • Absicherung intern: T 6,3 A
      • Elektr. Leistungsaufnahme: Sekundärpumpe A1 (PWM) 60 W
      • Energieeffizienzindex (EEI) Sekundärpumpe: A1 0,2
      • Elektr. Leistungsaufnahme: Sekundärpumpe A2 (PWM) -
      • Energieeffizienzindex (EEI) Sekundärpumpe: A2 -
      • Nennspannung: 1/N/PE 230 V/50 Hz
      • Oder Nennspannung: 3/N/PE 400 V/50 Hz
      • Heizleistung: 8 kW
    • Kältemittel R290:
      • Kältemittel-Füllmenge: 1,2 kg
      • Treibhauspotenzial (GWP): 0,02
      • CO2-Äquivalent: 0,000024 t
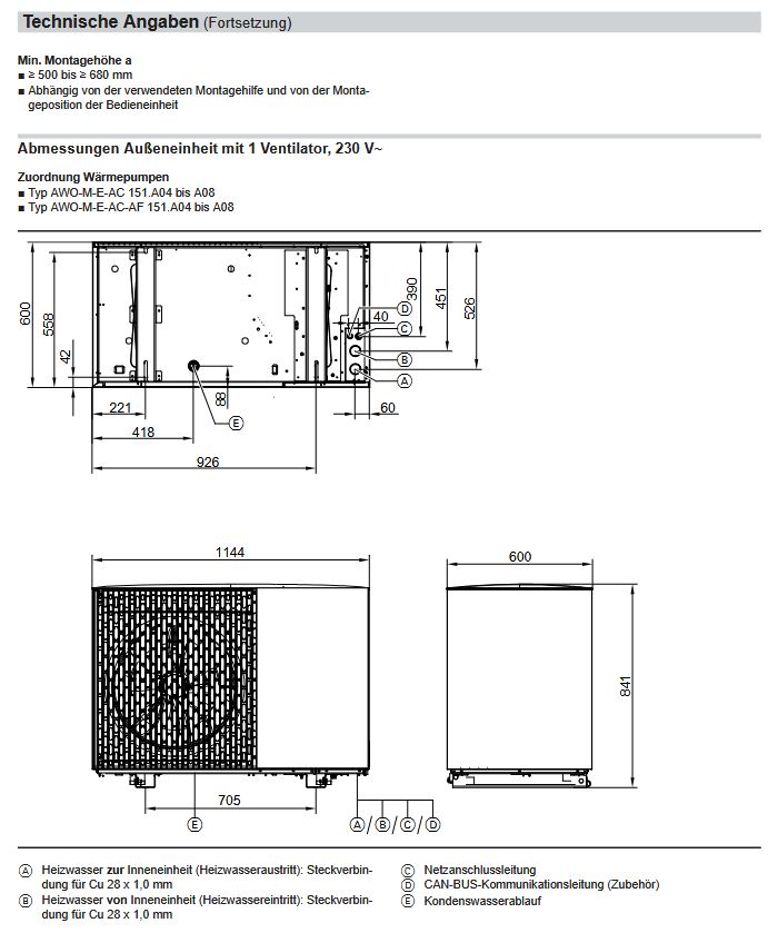
    • Abmessungen Außeneinheit:
      • Länge: 600 mm
      • Breite: 1144 mm
      • Höhe: 841 mm
      • Gewicht: 162 kg
    • Abmessungen Inneneinheit:
      • Länge: 360 mm
      • Breite: 450 mm
      • Höhe: 920 mm
      • Gewicht: 47 kg
    • Anschlüsse:
      • Heizwasservorlauf: CU 28 x 1
      • Heizwasserrücklauf: CU 28 x 1
      • Vorlauf Speicher-Wassererwärmer: CU 22 x 1
      • Rücklauf Speicher-Wassererwärmer: CU 22 x 1
      • Vorlauf externer Wärmeerzeuger -
      • Rücklauf externer Wärmeerzeuger -
      • Integrierter Speicher-Wassererwärmer:
      • Speicherinhalt: -
      • Max. zul. Trinkwassertemperatur: -

      Vorteile des Vitocrossal 300

      • komplette Wärmezelle mit Edelstahl-Wärmetauscher
      • eingebautes Ausdehnungsgefäß 8l
      • modulierender MatriX-Zylinderbrenner (komplett mit Gebläse, Gasarmatur, Ionisations-Flammenüberwachung und elektrischer Hochspannungszündung)
      • Für Erd- und Flüssiggas nach EN 437 geprüft und zugelassen
      • Aqua-Bloc mit Multi-Stecksystem
      • eingebauter, drehzahlgeregelter Hocheffizienz-Heizkreispumpe und automatischem Entlüfter
      • angebaute Kesselverkleidung aus Stahlblech, epoxidharzbeschichtet
      •  eingebaute Kesselkreisregelung für Raumtemperatur- und witterungsgeführte Betriebsweise (witterungsgeführte Betriebsweise nur mit Außentemperatursensor, Zubehör)
      • mit Speichertemperaturregelung und integriertem Diagnosesystem
        Die Regelung enthält: Temperaturbegrenzer, Temperaturwächter, elektronischen Maximaltemperaturbegrenzer, Pumpenblockierschutz und Open- Therm-Schnittstelle.
        Mit Anzeigen für Brennerbetrieb und -störung sowie Brennerleistung
      • Drehknöpfe für Einstellung der Kesselwasser- und Trinkwassertemperatur, Temperatur- und Betriebszustandsabfrage
      • Der bewährte MatriX-Gasbrenner mit LambdaPro Control Verbrennungsregelung passt sich automatisch an sich verändernde Gasqualitäten an und garantiert einen konstant hohen Norm-Nutzungsgrad von 98 Prozent, und dies für Erd- und Flüssiggas.

      Technische Daten Vitocrossal 300:

      • Vitocrossal 300 CU3A 13 kW
      • Nennwärmeleistung bei 50/30 °C 7,0 - 35 kW
      • Nennwärmeleistung bei 80/60 °C 6,3 - 32,3 kW
      • Normnutzungsgrad Hs bis 98 %
      • Normnutzungsgrad Hi bis 109 %
      • max. Betriebsdruck 3 bar
      • Kesselwasserinhalt 49 Liter
      • Gewicht 125 kg
      • Länge 684 mm
      • Breite 660 mm
      • Höhe 1562 mm
      • Abgasanschluss 80 mm
      • Zuluftanschluss 125 mm

      Installation:

      • Die Montage (Gas/Wasser) sowie die Erstinbetriebnahme und die Wartung dieses Gerätes dürfen nur von einem SHK-Anlagenmechaniker in Übereinstimmung mit den gültigen Vorschriften sowie entsprechend dieser Anweisung ausgeführt werden!
      WEEE-Reg.-Nr.: DE 58723830
WEITERE ANGEBOTE VON HEAT-STORE FIND SIE HIER

Artikel, die Sie noch interessieren könnten

Kostenlose Gallery von